您的位置:首页 > 全部楼盘 > 六合浅山

六合浅山

均价25000元/平

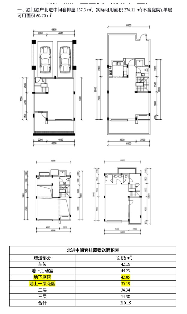
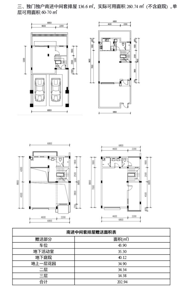
主力户型: A户型4室3厅4卫1厨(137㎡) B户型5室3厅4卫1厨(136㎡)
产权年限:70年
最新开盘:2018年6月29日
楼盘地址:淳安千岛湖青溪新城坪山中心区块(千岛湖旅游客运中心对面)
售楼处 预约专线 0571-88582897 营销中心工作时间:9:00-20:00 请提前电话预约,将有专人为您服务!
千岛湖【浅山花园】 区位:杭州千岛湖5A景区内 产品:排屋,跃层 户型:135,138,155 跃层170,240,260 卖点:附送前后庭院75到300平米,双车位,全明地下室,露台,挑高6米。 物业:开元物业 交房:跃层是现房即买即住, 2019年6月30交房. 交通:高速出口2公里,客运中心正对面,今年高铁通车。 配套:自带3.5万方商业,建兰中学,啤酒小镇,银泰城,人民医院,6500米沿湖景观带。 价格:跃层200到280万,单价12000左右。低层住宅成交总价400万起。 销售热线:0571-88582897
售楼处看房专车
已有108人领取
售楼处5000元购房劵
已有611人领取
在售户型
  • A户型4室3厅4卫1厨 0571-88582897
  • B户型5室3厅4卫1厨 0571-88582897
  • A2户型138方可实用面积375方0571-88582897
  • B1户型135方可实用面积268方0571-88582897
楼盘相册
1
2
3
4
六合浅山效果图
1
2
3
4
六合浅山实景图
1
2
3
4
5
六合浅山样板图
1
2
3
4
5
六合浅山位置图
1
2
3
4
5
六合浅山配套图
楼盘详细

基本信息

所属区淳安县
所属区块千岛湖
楼盘地址淳安千岛湖(千岛湖旅游客运中心对面)
销售状态在售
售楼电话0571-88582897
开发商淳安怡和置业有限公司

销售信息

开盘时间2017年9月29日
入住时间2019年6月
价格详情26000 元/㎡
售楼地址千岛湖售楼处:千岛湖睦洲大道项目现场

建筑信息

产权年限70年
建筑面职250000平米
占地面积138000平米
装修情况毛坯
开发商淳安怡和置业有限公司

物业信息

容职率0.59
绿化率40.00%
物业公司开元物业公司

楼盘简介


    六合浅山是六合地产集团继六合天寓后新开发的中高端度假生活住区。浅山位于千岛湖青溪新城区块,西临千岛湖城区、新行政及文化中心,东邻杭千高速千岛湖出口,北面依山,南面临湖。目前项目周边已拥有洲际、希尔顿、高尔夫球场等高端度假休闲配套,未来还将建设城市广场、商业广场、环湖景观带等度假休闲配套设施,是一片深具发展潜力和适宜度假生活的区域。

    浅山项目占地面积约13.8万㎡,总建筑面积约25万㎡,总户数1400余户,主要建筑类型有高层湖景私寓、水岸商业集群。浅山希望带给居住者的不仅仅是千岛湖山水环抱中的那份惬意从容,更是度假、生活和休闲完美融合下的美妙享受。浅山开创全龄段度假生活配套体系,让千岛湖的居住更有深度,开启千岛湖度假生活新篇章。度假在浅山,浅山拥有精彩纷呈的度假休闲配套。

    项目内部1.2万㎡中央度假主题公园,设有无边际景观泳池、下沉式休闲广场、烧烤天地、观景水吧及全功能度假客厅等丰富设施;蜿蜒曲折的湖岸线,从项目内部的湖岸主题景观带到外部的新城滨湖景观带,休闲娱乐空间五彩缤纷;还有千岛湖繁星般的休闲度假配套,千岛湖高尔夫乡村俱乐部、高端酒店集群、森林公园、农家乐等,让假日倍增光彩。生活在浅山,浅山丰富的生活配套让日常生活变得便捷舒适,浅山交通方便,与千岛湖汽车客运中心面对面。项目沿睦洲大道规划约11500㎡沿街商业,未来主力引进特色餐厅、银行、干洗店、超市、面包房等生活类商业。同时项目3#地块约25000㎡湖滨高端商业集群等,规划有城市综合广场、精品艺术酒店或特色度假酒店、商场等度假生活设施,为生活在浅山提供各种需求保障。售楼处预约电话:0571-88582897


楼盘地图
<iframe width="504" height="753" frameborder="0" scrolling="no" marginheight="0" marginwidth="0" src="http://j.map.baidu.com/FzzpP"></iframe>